
Dům z tmavých neomítnutých cihel tvoří spolu se zahradou harmonický celek.
Foto: Kateřina Hornyšová

Terasu doplňují rostliny vysazené v nádobách a bylinky v koších.
Foto: Kateřina Hornyšová

Začátek léta patří na zahradě pivoňkám, které krásně vyniknou mezi šalvějemi a levandulemi. Přístavbu domu obývají rodiče majitele.
Foto: Kateřina Hornyšová

Kromě odpočinku nabízí zahrada prostor ke grilování.
Foto: Kateřina Hornyšová

Starou studnu obklopuje záhon s trvalkami a bylinkami.
Foto: Kateřina Hornyšová

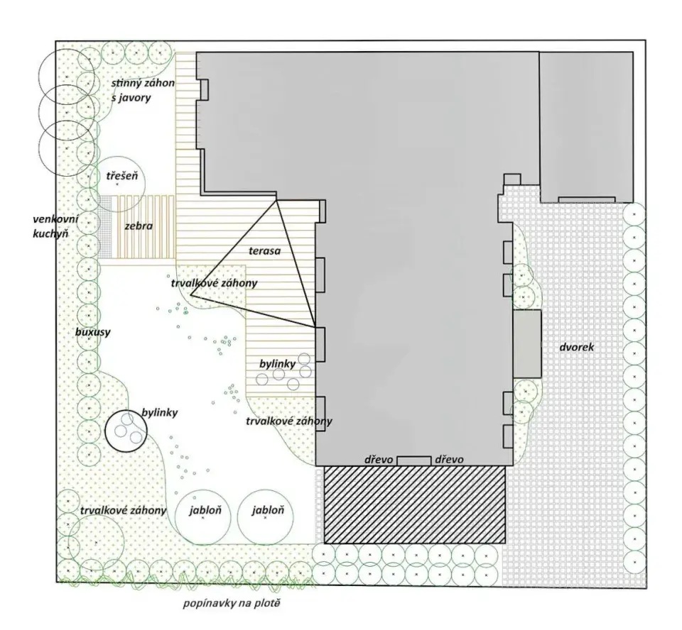
Plánek zahrady, ve kterém už jsou zakomponovány změny, které v předchozích letech udělal zahradník.
Foto: Andrea Junková
Prohlédněte si další galerie
- Tyto pokojové rostliny nezabijete, ani kdybyste se o to pokusili. Druhá v pořadí je totální legenda
- Zahradní rašelina není taková pomoc, jak se zdá: Úžasný substrát vytvoříte z toho, co máte doma
- Tyto druhy skoro nikdo nepěstuje. Medová lilie vás uhrane fontánou svých květů, česnek kulatohlavý je magnetem pro čmeláky
- Úžasně jednoduchý trik pro zimní zahradu: Takhle zazimujete trvalky během pár minut a na jaře budou růst jako šílené
- Cukráři i designéři se shodují: Bez nejkrásnější vánoční hvězdičky nebudou vaše recepty a dekorace nikdy dokonalé



